1005 Oak Street $165,000

MLS#: 392903
Address: 1005 Oak Street
City / Zip: Mobile, AL 36604
Type: Residential Income

0.113

Lot Size

3

Bedrooms

Mobile

City

Overview

Click the main image above for larger images

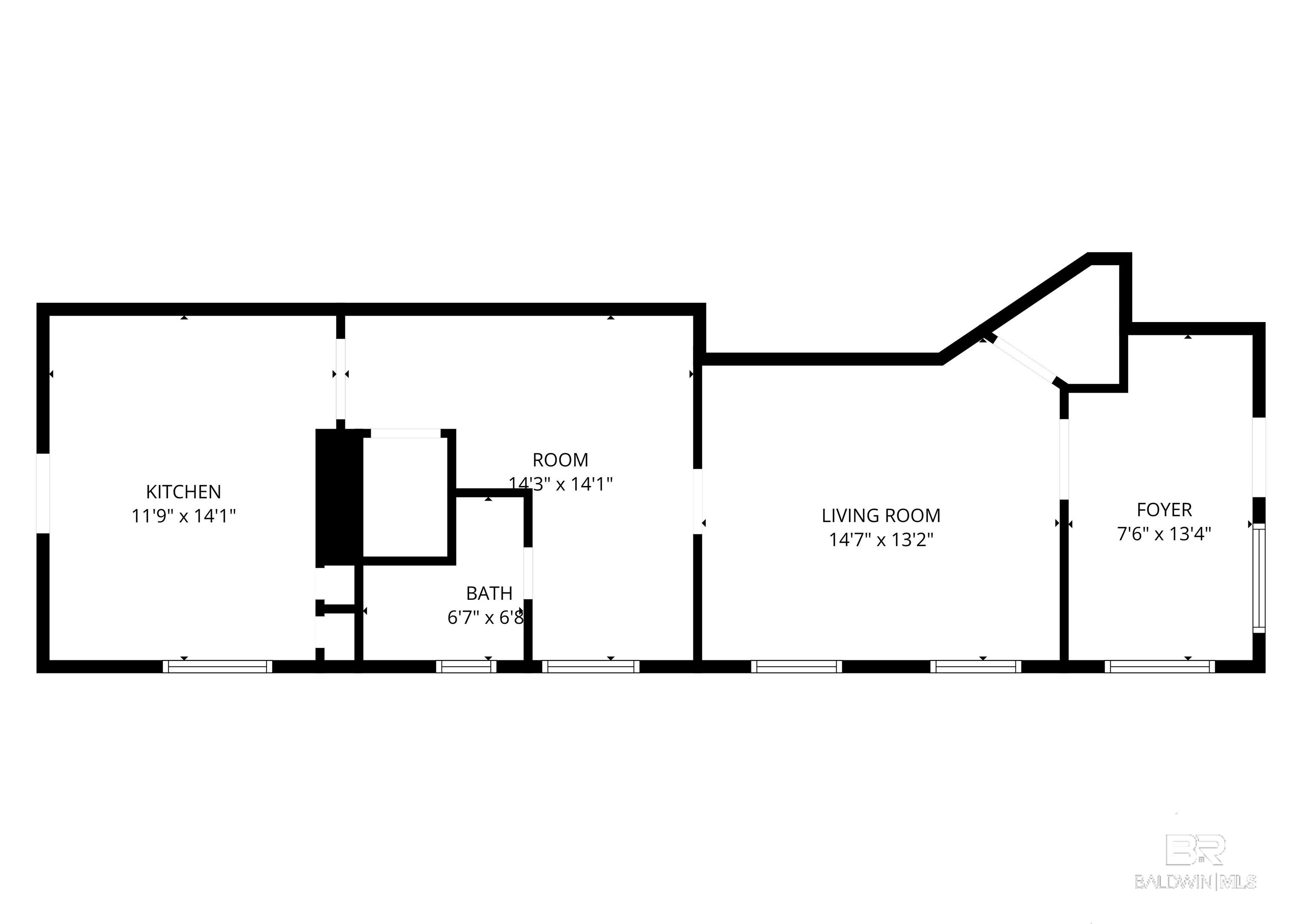
Excellent rental opportunity! This is a midtown duplex! It would be perfect for someone wanting to live in one side and lease the other side out. One unit is updated and is one bedroom, one bath with laundry connections. The unit (Unit A) will come with appliances including a washer and dryer. This unit has rented for up to $900 per month. Unit B is currently rented on a long term lease for $850 per month. Tenant has occupied for over 2 years. This could make an excellent long or short term rental on Airbnb, or you could live in one side and rent the other to offset the mortgage! The property to the left of the home, with the storage building does convey with the property. This property is professionally managed. The year built is UNKNOWN to the sellers. All measurements are approximate and not guaranteed, buyer to verify. Buyer to verify all information during due diligence.

This listing is provided courtesy of Bellator Real Estate LLC Mobil

Map

Map may not be 100% accurate.

Amenities

    Property Amenities

    • Interior Features

      • Dryer
      • Electric Range
      • Refrigerator
      • Washer
    • Flooring

      • Wood
    • Cooling

      • Window Unit(s)
    • Sewer

      • Public Sewer
    • Fireplace

      • 0
    • Roof

      • Composition
    • Foundation

      • Pillar/Post/Pier
    • Exterior Features

      • Sewage-City
      • Water-City
      • Alabama Power
    • Fencing

      • Fenced

Want To Know More About This Listing?

Leave this field empty

Fill out the form below to get more information.

*
*
*
*
*

Additional Information

South Baldwin Chamber
affiliate
affiliate
affiliate
affiliate
Chat with us