1006 Captain O'Neal Drive $1,975,000

MLS#: 392293
Address: 1006 Captain O'Neal Drive
City / Zip: Daphne, AL 36526
Type: Residential

1.365

Lot Size

4

Bedrooms

4

Bathrooms

Overview

Click the main image above for larger images

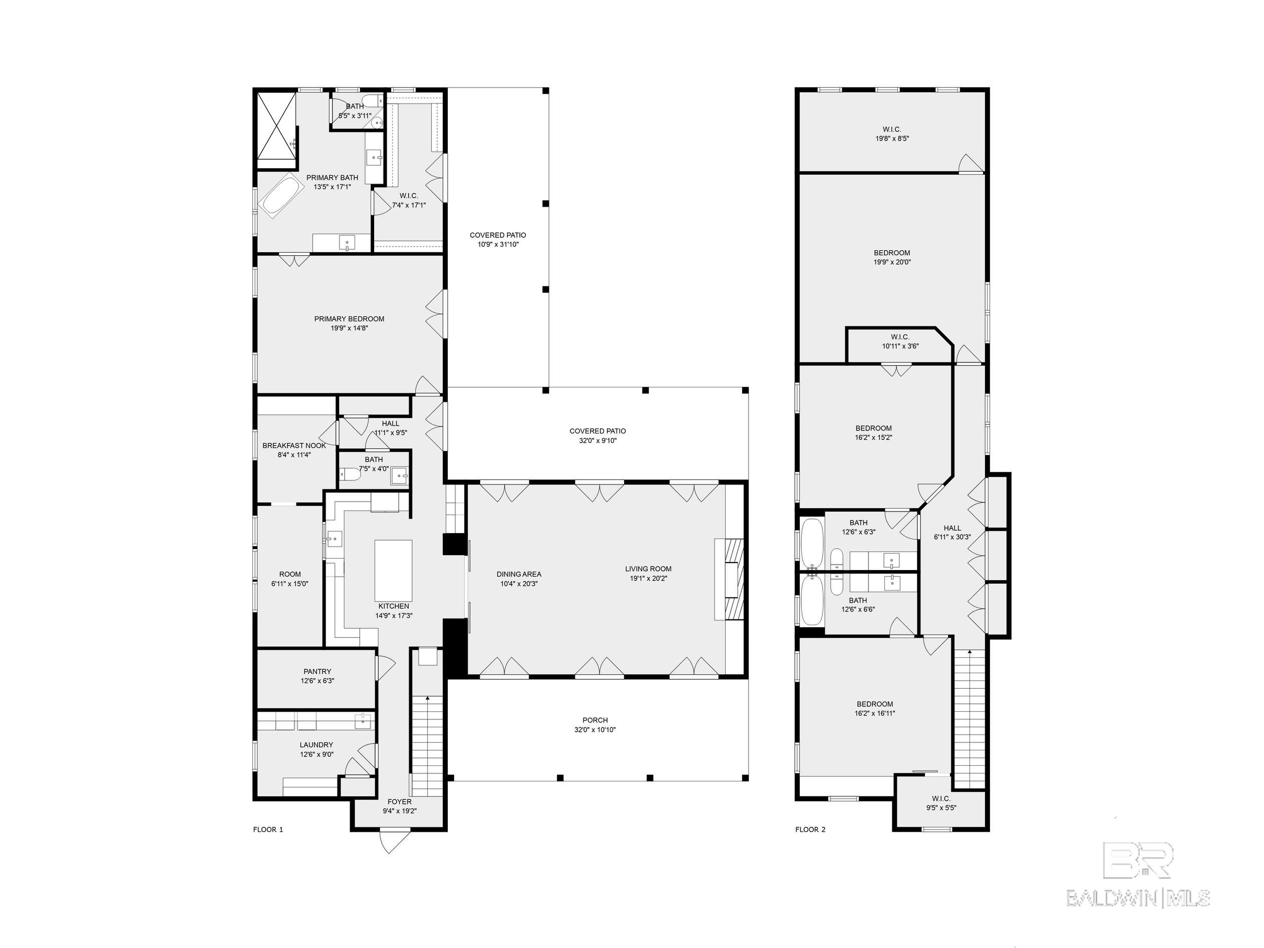
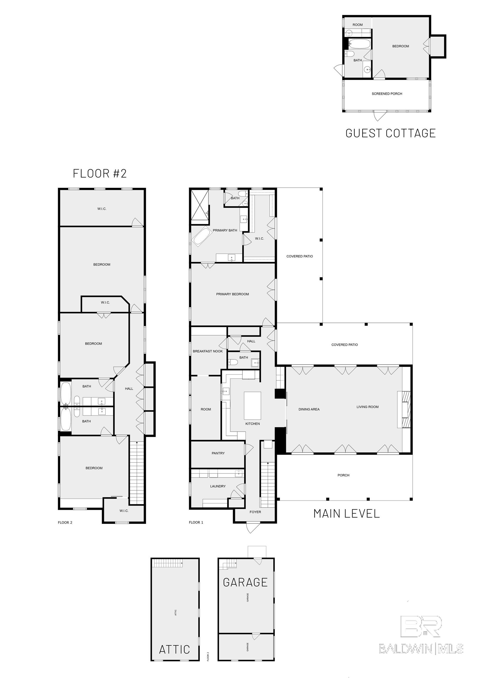
This highly desirable home in Olde Towne Daphne is designed with timeless Texas Hill Country architecture and built to commercial-grade specifications. The exceptional custom residence sits on 1.3 beautifully maintained acres in one of the Eastern Shore's most sought-after locations. The main house has 3 bedrooms and 3.5 baths plus office, separate study and bonus room plus room to add more square footage. Over 1,000 square feet of covered porches overlook the serene, private grounds. Inside, the grand living room features soaring 27-foot ceilings, dramatic antique pine trusses, and a stunning stone fireplace. Reclaimed wood and stone details, 1-inch heart pine flooring, and custom trim create warmth and character throughout. The chef’s kitchen offers leathered countertops, a six-burner Thermador gas range, warming drawer, wine fridge, and white-oak barnwood cabinetry. A private study, distinctive secondary bedroom with hanging bed, and a spacious rec room with built-in bunks make this home ideal for both everyday living and entertaining. The primary suite showcases slate and travertine finishes. A 377 sq ft guest house with cypress interior adds flexibility. Additional highlights include a bronze standing seam roof, reinforced 150+ mph wind-rated construction, rear porch bar and fire pit, private irrigation well, three-car garage with floored storage, and extensive recent upgrades including new HVAC's, lighting, well pump, tankless water heater, and renovated baths. A short stroll to schools, parks, churches, restaurants, shopping or watch amazing sunsets on the beautiful Mobile Bay. Buyer to verify all information during due diligence.

This listing is provided courtesy of Blackwell Realty, Inc.

Map

Map may not be 100% accurate.

Amenities

    Property Amenities

    • Interior Features

      • Dishwasher
      • Disposal
      • Convection Oven
      • Dryer
    • Utilities

      • Natural Gas Connected
      • Water Heater-Tankless
      • Daphne Utilities
      • Riviera Utilities
    • Flooring

      • Natural Stone
      • Tile
      • Wood
    • Cooling

      • Central Electric (Cool)
    • Heating

      • utilitiesOwnerPays
    • Sewer

      • Public Sewer
    • Fireplace

      • 1
    • Roof

      • Metal
    • Foundation

      • Pillar/Post/Pier
    • Exterior Features

      • Natural Gas Connected
      • Water Heater-Tankless
      • Daphne Utilities
      • Riviera Utilities
      • Sewage-City
      • Water-City
      • Irrigation Sprinkler
      • Concrete Board
      • Stucco
      • Wood Siding
      • Steel Frame
      • Wood Frame
    • Parking

      • Attached
      • Three Car Garage
      • Automatic Garage Door
    • Exterior Finish

      • Concrete Board
      • Stucco
      • Wood Siding
      • Steel Frame
      • Wood Frame
    • Exterior Structures

      • Guest Cottage
    • Laundry Location

      • Main Level
      • Inside
    • Porch / Balcony / Deck

      • Covered
      • Porch-Open
      • Porch-Screened

Want To Know More About This Listing?

Leave this field empty

Fill out the form below to get more information.

*
*
*
*
*

South Baldwin Chamber
affiliate
affiliate
affiliate
affiliate
Chat with us