21137 Roughleaf Drive $280,040

MLS#: 391356
Address: 21137 Roughleaf Drive
City / Zip: Summerdale, AL 36580
Type: Residential

0.1848

Lot Size

4

Bedrooms

2

Bathrooms

Overview

Click the main image above for larger images

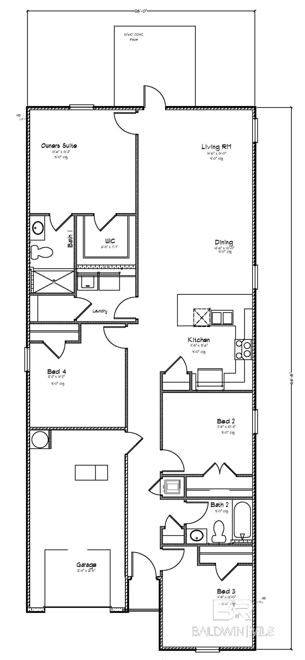
This home is currently under construction! Call today to ask about our current buyer's incentives! The Sullivan floor plan features 4 bedrooms 2 Bathrooms, 1,410 Sq Ft. 9 Ft. High ceilings, 1 car garage. This beautiful home is being built with SMARTHOME CAPABILITIES, Luxury Vinyl flooring. The Kitchen features Large Peninsula, MOEN Faucets, Garbage Disposal, Stainless Dishwasher, Stainless Over the Range Microwave, and Stainless Smooth Top Electric Range. 10-Year LED Lighting throughout the home. Energy Efficient LOW-E DOUBLE PANE WINDOWS. Termite Coverage for the FIRST YEAR, fabric shields for the windows and doors. * This home is being built to Gold FORTIFIED Home TM certification, which may save the buyer on their homeowner’s insurance. (See Sales Representative for details.) **This home features our Home is Connected (SM) Smart Home Technology which includes control panel, doorbell, smart code lock, two smart light switches, and thermostat, all controlled by one app. Buyer to verify all information during due diligence. The prime location of Dogwood Estates makes this community an easy and fun to commute from/to the beach, Interstate 10 and all the fun activities offered in the surrounding areas. Buyer to verify all information during due diligence. Schedule your appointment today! Pictures are of a similar home and are not necessarily of the subject property and may not reflect colors, options, and finishes of the subject property. Estimated completion of May 2026!

This listing is provided courtesy of DHI Realty of Alabama, LLC

Map

Map may not be 100% accurate.

Amenities

    Property Amenities

    • Interior Features

      • Dishwasher
      • Disposal
      • Microwave
      • Electric Range
      • Electric Water Heater
      • ENERGY STAR Qualified Appliances
    • Utilities

      • Underground Utilities
      • Summerdale Utilities
    • Flooring

      • Vinyl
    • Cooling

      • SEER 14
    • Heating

      • Heat Pump
    • Sewer

      • Baldwin Co Sewer Service
    • Fireplace

      • 0
    • Roof

      • Composition
      • Ridge Vent
    • Foundation

      • Slab
    • Exterior Features

      • Underground Utilities
      • Summerdale Utilities
      • Baldwin Co Sewer Service
      • Electric Water Heater
      • Total Electric
      • Termite Contract
      • Brick
      • Hardboard
      • Wood Frame
      • Fortified-Gold
    • Parking

      • Attached
      • Single Garage
      • Automatic Garage Door
    • Exterior Finish

      • Brick
      • Hardboard
      • Wood Frame
      • Fortified-Gold

Want To Know More About This Listing?

Leave this field empty

Fill out the form below to get more information.

*
*
*
*
*

South Baldwin Chamber
affiliate
affiliate
affiliate
affiliate
Chat with us