4207 Burma Road $259,279

MLS#: 390926
Address: 4207 Burma Road
City / Zip: Mobile, AL 36693
Type: Residential

0.875

Lot Size

3

Bedrooms

2

Bathrooms

Overview

Click the main image above for larger images

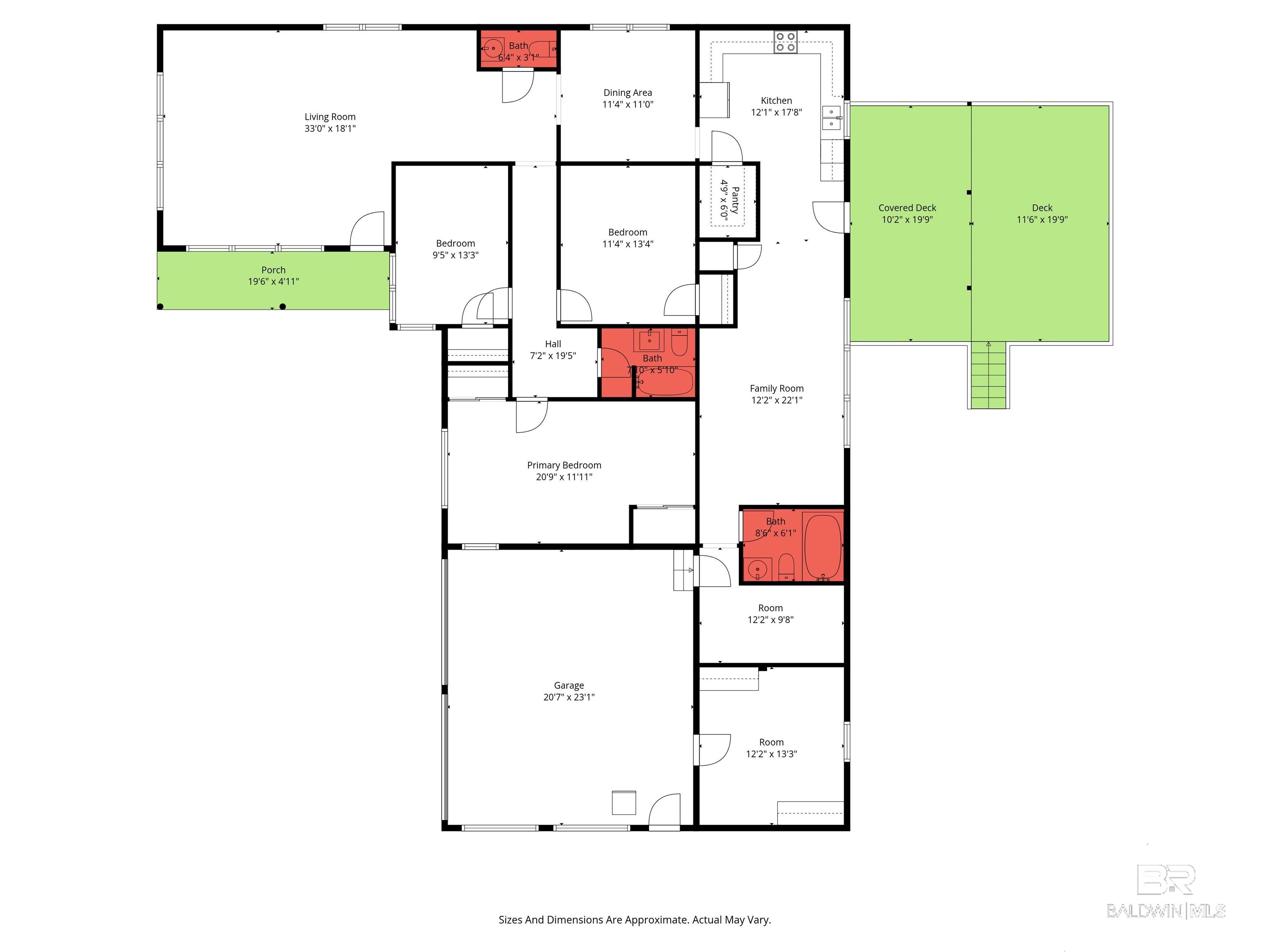
VRM: Seller will entertain offers between $259,000 and $279,000. Set on a generous lot (0.875 acres) in an established Mobile neighborhood, this home offers exceptional space both inside and out while staying close to grocery stores, restaurants, and shopping. The oversized front and backyard provide plenty of room to spread out, entertain, and enjoy outdoor living—all while maintaining a true neighborhood setting. Inside, the layout offers flexibility, fresh paint, and room to gather with a large living room plus a separate family room, creating multiple spaces for hosting, relaxing, or everyday living. Large windows throughout bring in abundant natural light and highlight the original hardwood floors and tile flooring—no carpet anywhere. The kitchen is spacious with ample cabinetry and storage, designed for both function and flow. A convenient half bath sits just off the main living area, making it ideal for guests. Step out onto the covered back deck overlooking a sprawling backyard with room for a pool, gazebo, outdoor kitchen, fire pit, garden, boat, RV, workshop, or additional storage. A long driveway provides plenty of parking, and the two-car garage includes a large utility room/workshop (12'x13') with laundry hookups and built-in cabinets. With a cozy front porch, timeless finishes, and a floor plan that offers space and character throughout, this home stands out for its size, layout, and setting. Buyer to verify all information during due diligence.

This listing is provided courtesy of Real Broker, LLC

Map

Map may not be 100% accurate.

Amenities

    Property Amenities

    • Interior Features

      • Dishwasher
      • Electric Range
      • Refrigerator
    • Flooring

      • Tile
      • Wood
    • Cooling

      • Central Electric (Cool)
    • Heating

      • Central
    • Sewer

      • Public Sewer
    • Fireplace

      • 0
    • Roof

      • Composition
    • Exterior Features

      • Sewage-City
      • Water-City
      • Alabama Power
      • Brick
      • Wood Siding
    • Parking

      • Attached
      • Double Garage
      • Automatic Garage Door
    • Exterior Finish

      • Brick
      • Wood Siding
    • Fencing

      • Fenced
    • Porch / Balcony / Deck

      • Covered
      • Rear Porch
      • Front Porch

Want To Know More About This Listing?

Leave this field empty

Fill out the form below to get more information.

*
*
*
*
*

Additional Information

South Baldwin Chamber
affiliate
affiliate
affiliate
affiliate
Chat with us