5432 Beach Boulevard $1,459,000

MLS#: 390255
Address: 5432 Beach Boulevard
City / Zip: Gulf Shores, AL 36542
Type: Residential

0.624

Lot Size

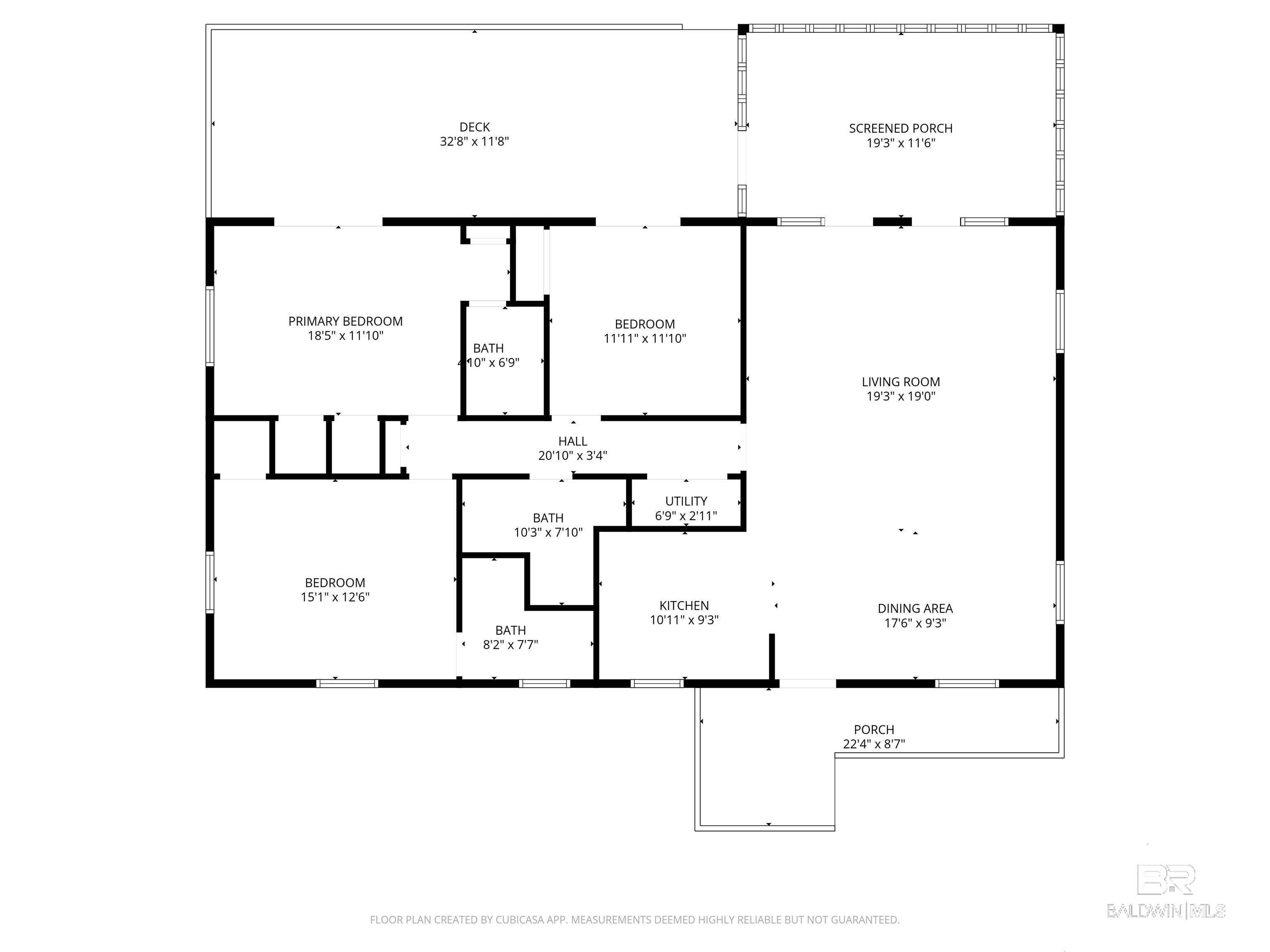
3

Bedrooms

3

Bathrooms

Overview

Click the main image above for larger images

Classic beachfront style, refined finishes, and quality construction define this exceptional GULF FRONT vacation home, "Stuck in the Sand". All one level, and meticulously maintained inside and out, offering timeless appeal with outstanding income potential and enduring value. $74k already booked for 2026! Beautiful tongue-and-groove wood accents, complemented by a vaulted ceiling in the living area with exposed stained beams for added character and structural integrity. The intimate, yet sensible spaces offer plenty of room for gathering with friends and family. Double access to the fabulous, screened porch, a great place to lounge and watch the waves roll in. Two bedrooms overlook the gorgeous gulf waters with private access to the expansive, open deck. Updated kitchen with granite counters, custom tile backsplash, undermount cabinet lighting, and stainless appliances, plus all of the comforts of home. Luxury vinyl plank flooring throughout and all bedrooms are enhanced with wood ceilings and recessed lighting. Spacious bathrooms with granite vanities and tile shower surrounds, two with walk-in showers. Extensive improvements over the past 5 years to include a fully painted exterior (2024), impact resistant windows, electrical/plumbing, brand new decking, and encapsulation of the underside with blown insulation for low average utility costs ($150/mo average). Metal roof 2019, HVAC 2023 (w/air scrubber), water heater 2021, and all appliances new since 2020, washer/dryer 2019. Located on the Fort Morgan peninsula and surrounded by nature, tour the historic fort site or take a hike through the Bon Secour Wildlife Refuge. World-class golfing at Kiva Dunes and Peninsula plus offshore boat charters are available for Gulf and Bay fishing. No need to stray far for local restaurants and great eats at Sassy Bass, Tacky Jack's, and Jesse's on the Bay. Grocery nearby. Have some fun and get "Stuck in the Sand" for your next investment adventure. See Virtual Tour. Buyer to ver

This listing is provided courtesy of RE/MAX of Gulf Shores

Map

Map may not be 100% accurate.

Amenities

    Property Amenities

    • Interior Features

      • Dishwasher
      • Dryer
      • Microwave
      • Refrigerator w/Ice Maker
      • Washer
      • Cooktop
      • Electric Water Heater
    • Utilities

      • Gulf Shores Utilities
      • Cable Connected
    • Flooring

      • Luxury Vinyl Plank
    • Cooling

      • Ceiling Fan(s)
    • Heating

      • utilitiesOwnerPays
    • Sewer

      • Septic Tank
    • Fireplace

      • 0
    • Roof

      • Metal
    • Foundation

      • Pilings
    • Exterior Features

      • Gulf Shores Utilities
      • Sewage-Septic
      • Electric Water Heater
      • Water-City
      • Total Electric
      • Baldwin EMC
      • Hardboard
      • Wood Frame
    • Parking

      • None
      • Three or More Vehicles
    • Exterior Finish

      • Hardboard
      • Wood Frame
    • Porch / Balcony / Deck

      • Porch-Open
      • Porch-Screened
      • Rear Porch

Want To Know More About This Listing?

Leave this field empty

Fill out the form below to get more information.

*
*
*
*
*

South Baldwin Chamber
affiliate
affiliate
affiliate
affiliate
Chat with us