1380 FORT MORGAN Road $419,900

MLS#: 375875
Address: 1380 FORT MORGAN Road
City / Zip: Gulf Shores, AL 36542
Type: Residential

2.32

Lot Size

2

Bedrooms

2

Bathrooms

Overview

Click the main image above for larger images

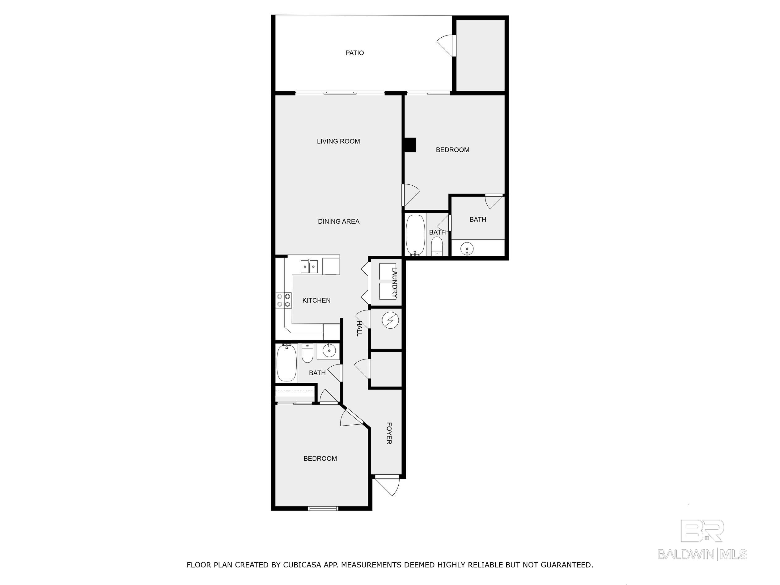
Dunes condo 106 is located on the 1st floor where you only have to walk out on your patio to view the lush tropical plants and flowers that surround the area. From your patio you can enjoy the pool view! This beautifully furnished two bedroom condo has almost 1,000 sq. Ft. of space for you and your family to play and relax. This condo will sleep six people comfortably. The master bedroom has king bed with a private bathroom. There is also a TV with cable located in the master bedroom. The guest bedroom has a queen bed and cable TV. There is a full bathroom located in the hall. The kitchen is fully stocked with all the essentials you'll need on vacation. The living room is beautifully furnished with a, chair and ottoman with a large sofa which will make into a queen bed. The kitchen table will seat four with additional seating for three at the bar. There is a full size washer and dryer in the condo which means all you need are a pair of shorts, tee shirt, flip flops and a bathing suit and you're ready to enjoy the beach or pool Buyer to verify all information during due diligence.

This listing is provided courtesy of Sunset Properties Gulf Shores

Map

Map may not be 100% accurate.

Amenities

    Property Amenities

    • Interior Features

      • Dishwasher
      • Disposal
      • Dryer
      • Microwave
      • Electric Range
      • Refrigerator
      • Washer
    • Utilities

      • Cable Connected
    • Flooring

      • Tile
    • Cooling

      • Central Electric (Cool)
      • Ceiling Fan(s)
    • Fireplace

      • 0
    • Roof

      • Built-Up
      • Metal
    • Exterior Features

      • Baldwin EMC
      • Storage
      • Stucco
    • Parking

      • Parking Lot
    • Exterior Finish

      • Stucco
    • Laundry Location

      • Main Level

Want To Know More About This Listing?

Leave this field empty

Fill out the form below to get more information.

*
*
*
*
*

Additional Information

South Baldwin Chamber
affiliate
affiliate
affiliate
affiliate
Chat with us